目前,国内客运专线铁路无砟轨道技术大部分从国外引进,轨道结构形式可分为五大类,即:CRTSⅠ型板式无砟轨道(日本板)、CRTSⅡ型板式无砟轨道(德国博格板)、CRTSⅢ型板式无砟轨道(国产化研发)、CRTSⅠ型双块式无砟轨道(德国RHEDA2000型)、CRTSⅡ型双块式无砟轨道(德国旭普林型)。
CRTSⅠ型双块式无砟轨道(德国RHEDA2000型):将预制的双块式轨枕组装成轨排,以现场浇注混凝土方式将轨枕浇入均匀连续的钢筋混凝土道床内,并适应ZPW-2000轨道电路的无砟轨道结构型式 。
CRTSⅡ型双块式无砟轨道(德国旭普林型):以现场浇注混凝土方式,将预制的双块式轨枕通过机械振动法嵌入均匀连续的钢筋混凝土道床内,并适应ZPW-2000轨道电路的无砟轨道结构型式。
Ⅰ型双块式无砟道床和Ⅱ型双块式无砟道床结构型式基本相似,但施工工艺有着本质的区别。Ⅰ型双块式无砟道床主要采用“钢轨支撑架法”先架设工具轨轨排,绑扎好钢筋后浇注道床板混凝土,而Ⅱ型双块式无砟道床则是先浇注道床板混凝土,然后采用专用机械“振动法”将双块式轨枕振动嵌入到密实的混凝土道床中。

Ⅰ型双块式无砟轨道
钢轨支撑架架轨法施工

Ⅱ型双块式无砟轨道
机械振动法施工
本工程案例是我国首次采用雷达2000型双块式无砟轨道施工工艺的线路,它是集引进国外先进高速铁路施工技术和我国自主研发设计、施工于一体的轨道结构。它具有短枕轻便,结构类型统一,整体性能稳定,外形简洁、美观漂亮等特点,但同时又具有设计标准高,精度要求严、施工过程控制难的特点。
①《客运专线无砟轨道铁路工程施工质量验收暂行标准》(铁建设[2007]85号);
②《客运专线无砟轨道铁路工程测量暂行规定》(铁建设〔2006〕189号);
③《客运专线铁路无砟轨道铺设条件评估技术指南》(铁建设〔2006〕158号);
④《客运专线无砟轨道铁路工程施工技术指南》(TZ216-2007);
⑤《客运专线无砟轨道铁路设计指南》(铁建设函[2005]754号);
⑥《铁路混凝土工程施工质量验收补充标准》(铁建设[2005]160号);
⑦《铁路混凝土工程施工技术指南》(TZ210-2005);
⑧设计文件和图纸。

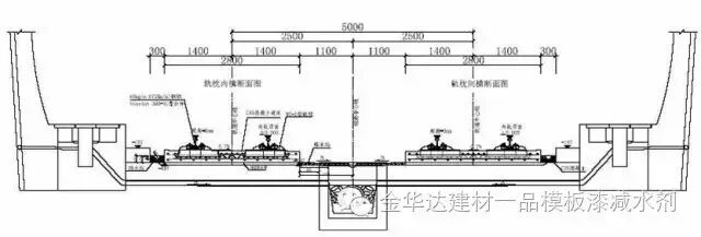
路基地段轨道断面图

桥梁地段轨道断面图

隧道地段轨道断面图

Ⅰ型双块式无砟轨道扣件系统
( Vossloh 300-1U)示意图
线下结构物沉降评估——基标(CPⅢ)测量——支承层、桥梁保护层及凸台施工——轨枕、钢轨、钢筋等材料工地存放——铺设土工布、底层钢筋——铺设轨枕、组装轨排——安装螺杆调节器、轨道粗调——铺设中上层钢筋、综合接地设置——安装纵、横向模板——精调并固定轨排——道床板混凝土浇注——松螺杆调节器和扣件——混凝土养护、轨道复测——拆除螺杆调节器、模板及工具轨——质量验收,道床清理——长轨铺设及轨道动态调整等共十六项工序。

首先用滑模摊铺机摊铺或人工立模浇注混凝土支承层, 绑扎钢筋浇注桥面保护层和凸台混凝土,然后将轨枕、工具轨、钢筋等材料卸放至施工区段(双线材料一次卸完)。最后在Ⅰ线开始铺设底层钢筋、组装轨排、粗调轨排、绑扎钢筋、立模、精调轨排、浇注道床板混凝土等无砟道床施工作业,Ⅰ线施工完成后转入Ⅱ线施工。
一般Ⅰ线施工不受现场条件限制,施工组织比较容易, Ⅱ线施工受现场条件限制较多,施工组织比较困难。故施工前要详细调查现场便道情况,充分考虑物流组织(主要是Ⅱ线的混凝土供应问题),进而决定Ⅰ线、Ⅱ线施工方法和长度。 Ⅱ线混凝土通常采用臂架泵或拖式地泵浇注。
双块式无砟轨道施工主要施工设备有:混凝土搅拌站、混凝土运输车、混凝土泵送车、混凝土输送泵、滑模摊铺机、轨料运输车、散枕设备、轨排粗调机、螺杆调整器、汽车吊、龙门吊、精调小车等。

1)CPⅢ控制网建立
● 在已有CPⅠ、CPⅡ和国家二等水准点的基础上,每50~60米加密测设一对CPⅢ点,作为无砟轨道施工的控制点。
2)混凝土支承层或桥面保护层、凸台施工
●用滑模摊铺机摊铺或人工立模浇注混凝土支承层, 一股道完成后再进行另一股道施工。
●人工绑扎桥面保护层、凸台钢筋,浇注保护层、凸台混凝土。桥面保护层一般整幅浇注,困难条件下也可先半幅再半副施工。凸台混凝土在桥面保护层达到一定强度后方可施工。
3)轨枕、钢筋、工具轨、模板等材料工地存放
●提前将施工所需的各种材料堆放到作业地点。
4)铺桥面土工布,布设底层钢筋
● 桥梁地段道床板与保护层之间设置4mm厚聚丙烯土工布中间层 ,然后布设底层钢筋,路基、隧道地段直接在支承层上按设计布设底层钢筋。
5)铺枕、上工具轨组装轨排
● 利用散枕器散布轨枕、跨线龙门吊安装钢轨
● 检查轨枕的间距、方正,利用电动扳手按规定扭力上紧扣件
6)轨排粗调
● 利用轨排粗调机对组装好的轨排进行粗调,保证轨道中线、标高、水平等指标控制在5mm偏差范围之内。
7)绑中、上层钢筋,综合接地设置
● 人工按设计位置、间距绑扎好中、上层钢筋,按要求对接地钢筋进行焊接,并设置好接地端子。
8)安装纵、横向模板
● 人工配合龙门吊或吊车按规定尺寸安装纵、横向模板
9)轨道精调
● 首先检查钢筋的绝缘和综合接地达到设计要求,再利用全站仪和精调小车对轨道进行最终调整,使各项指标达到设计要求。
10)混凝土浇注
● 先清洁、湿润道床,再利用混凝土浇注机或简易溜槽浇注道床板混凝土。
11)松螺杆调节器、扣件
● 混凝土初凝之前,要选择合适的时机先松螺杆调节器1/4圈,然后再松开所有扣件,确保轨枕和道床板混凝土的良好粘结及正确轨道几何尺寸,以及混凝土不随气温和轨温的变化而产生裂缝。
12)混凝土养护
● 当混凝土浇注完后要及时进行养护,养护时间一般不少于7天。
13)拆除螺杆调节器、模板、工具轨等
● 混凝土浇注后1~2天,可安排拆除并清理螺杆调节器、模板、工具轨等,以便周转使用。
14)封堵螺杆留下的孔洞、道床清理、质量验收等
● 采用C40无收缩混凝土对螺杆留下的孔洞进行封堵,清理干净道床各部位,检查各项几何尺寸,迎接长轨铺设。
15)长钢轨铺设
● 先利用长轨放送设备直接铺设500米长轨条,随后进行焊接和锁定。
双块式无砟轨道在我国大面积施工尚属首次,目前无任何成熟的经验可以借鉴,只能边学习、边实践、边总结、边提高。由于无砟轨道具有一次成型,轨道状态需一次达标,建成后调整几何形位十分困难的特点,故施工技术标准较高,施工过程控制较严。只有严格控制好各关键环节施工技术和质量,才能确保无砟轨道建设的成功。
客运专线基础设施的高质量体现在路基、桥涵和隧道主要控制“变形、整体性和耐久性”的高稳定性上。线下工程施工过程中,应按规定建立变形监测网,随时进行观测及分析评估,以指导线下工程顺利施工。而铺设无砟轨道成败的关键在于工后沉降和变形控制。无砟轨道对沉降变形,特别是不均匀沉降变形的要求十分严格。因此,一定要在分析评估沉降稳定,工后沉降满足要求后方可铺设无砟轨道。
CPⅢ网是最终控制无砟轨道施工的唯一施工网点,它是在已有CPⅠ、CPⅡ网和国家二等水准点的基础上,每50~60米加密测设一对CPⅢ点,作为无砟轨道施工的控制点。CPⅢ点的测设严格按照《客运专线无砟轨道铁路工程测量暂行规定》施工,最终成果通过设计单位审批后方可使用。 因为它是无砟轨道施工乃至以后运营唯一的参考网点,在无砟轨道施工过程中必须严格保护,避免碰撞,并经常复核。
无砟轨道施工前,应选择一定长度具有代表性的路、桥、隧段落作为工艺性试验段。对混凝土支承层、桥面防水层及抗剪凸台、轨道粗调和精调、钢筋绑扎及绝缘处理、综合接地、混凝土道床板浇注等重要分项工程和关键工序进行工艺性试验。在无砟轨道试验段内进行工装设备的安装、调试和试运转。通过试验段工程的开展,推进各项施工准备工作,对参建员工提前进行全面的技术培训,使参建员工尽早熟悉无砟轨道施工工艺和工装设备的操作。必要时,请外方专家现场培训。
路基支承层是道床板和路基本体之间重要的刚性过渡结构,其施工质量的好坏对最终道床板的使用寿命有十分重要的影响。首先,加强施工前对路基填筑质量的控制和验收,确保路基填筑标高、宽度、密实度等满足要求。
加强支承层混凝土配合比的选配,根据现场施工环境及运输条件的改变,及时调整施工配合比,确保密实度和强度满足设计要求。为控制后期道床板及支承层本体出现裂缝,在混凝土浇注后及时进行切缝,并统筹安排支承层及道床板施工间隔时间(尽可能安排支承层施工后一个月左右再进行道床板施工),使支承层混凝土充分完成收缩、达到规定强度,减少道床板的非正常裂纹。
桥梁保护层及凸台施工中,严格控制钢筋绑扎、同防撞墙预留钢筋的连接、接头及综合接地钢筋的焊接;同时,控制好凸台预留钢筋笼的平面位置、标高,使得混凝土浇注后,其能够满足道床板钢筋布置及设计规定的外形尺寸要求。
保护层混凝土施工中,注意对底部防水层的保护,加强其顶面标高及收光处理,对于局部不平顺部位采用打磨机进行打磨处理,使其实现设计要求的横向排水坡和铺设土工布中间层所必须的光滑表面 ,同时要加强养护,避免裂纹的产生。
按照设计要求将加工好的各种钢筋准确定位,然后绑扎绝缘卡,对钢筋进行绝缘处理;对每个接地单元内的贯通接地钢筋按要求焊接长度连接准确,并对绝缘性及接地电阻分别进行测试。施工中,必须严格控制钢筋加工精度及定位,否则,一旦有一处钢筋出现位置偏差,将影响到其他相邻钢筋的位置错误或保护层厚度不足,而调整将变得极为困难。
绝缘测试及接地测试也必须每班认真进行,否则将对道床的最终使用造成很大影响。
轨道精调是无碴轨道施工中非常关键的一道工序,它对轨道的几何尺寸最终位置能否达到设计及验标的要求起着决定性作用。调试时,将验标要求的标准作为最低标准,调试过程中考虑测量精度误差、施工影响、环境影响、操作误差的因素,留有一定的富余量(高程、轨距、中线、水平调试误差均控制在0.5mm以内),确保浇注砼后满足精度要求标准。同时,严格控制钢轨接头误差,采用轨头钻孔、精调一遍后上鱼尾板的措施,消除轨排之间的错台、错牙,保证线路的平顺性。
在曲线地段(尤其是曲线桥梁)通过在防撞墙增加斜拉杆的方式对轨排进行固定,防止其混凝土浇注过程中发生移位,同时尽量避免混凝土浇注过程中对轨道的碰撞,确保最终轨道几何形位。
混凝土浇注前2小时对轨枕表面进行洒水湿润,确保轨枕和新浇注混凝土之间的良好粘结以及防止混凝土中水分的流失。
混凝土生产前,首先检查混凝土拌合站设备状态,确保混凝土的均衡连续的生产,其次做好运输通道的调查,确保道路畅通,最后检查混凝土运输车辆,确保车辆状态良好。
混凝土浇注过程中,严格控制好混凝土的坍落度、含气量、入模温度等指标,加强混凝土捣固尤其是轨枕下混凝土的捣固。在气温高于30℃时严禁浇注混凝土,防止涨轨造成混凝土开裂;对于昼夜温差较大时应注意对钢轨的升、降温工作,可以采用养护帐篷对浇注后的混凝土进行防护,也可采用在钢轨上覆盖毡布的方式防止其温度快速升降。
由于长轨铺设每天可达到5~6公里,一般安排后期集中铺设以节约资源。长轨铺设时应注意避免对道床及扣件的损坏。
大区段长轨铺设完成后,及时进行单元焊接,待气温适宜时,再进行应力放散及锁定焊接,形成无缝线路。随后对线路进行仔细测量,通过最终的测量数据针对性更换扣件调整轨道几何尺寸,保证轨道的高平顺性,满足高速行车要求。
无砟轨道设计时速350公里,使用寿命60年,要把建设成为中国铁路史上的里程碑工程,施工质量的重要性是不言而喻的。要建好客运专线,首先必须提高全体参建员工的质量意识,改变过去普速铁路施工中粗放、不精细的陋习,每一个作业环节均要严格按照客运专线高标准精心施工,使大家真正做到“使标准成为习惯,让习惯符合标准”。
无砟轨道施工前,需充分做好技术准备工作。首先配足各级管理人员、各专业技术人员和现场作业人员,尤其是现场测量人员和试验检测人员。其次对所有参建人员进行理论和操作技能培训,经考核合格后持证上岗;最后做好工艺性试验,编制好施工组织设计、作业指导书、技术交底等技术文件,组织全体参建人员认真学习,弄懂吃透设计意图,彻底掌握施工工艺和技术标准,为保证施工质量奠定良好的基础。
在施工中使用合格的材料是工程质量得以保证的前提,无砟轨道所用材料均应满足设计文件要求。每批进场材料均要按相关规定进行检验和验收,不合格材料严禁使用。对于轨枕和钢轨,除进行必要的外观及相应尺寸检查外,还应按相关规定堆放,避免受弯变形;钢筋、水泥、粉煤灰、外加剂等按规定的批次检验 ;进场的砂石料等,严格控制颗粒级配和含污量不得超标;拌合好的混凝土运到现场后,应仔细核对混凝土配合比单,每车均应作坍落度检查,满足标准要求方能浇注。
不以规矩,不成方圆。健全的组织机构和规章制度是施工组织和质量保证的基础。双块式无砟轨道施工工序多,现场施工组织复杂,管理系统性强,如果没有严格的组织机构和规章制度约束,现场将一片混乱。要抓好现场的施工组织和质量控制,必须首先完善内控体系,针对各级管理和作业人员,分级、分类、分环节制定各种严格的管理制度和控制措施。各项制度措施必须针对性强、易于操作、分工明确、责任到人,才能起到预期的作用。
过程控制是施工管理和质量控制的根本,是整个无砟轨道施工成败的关键。各级管理人员在此环节起到了重要的作用,基层管理人员每班、每环节必须有专人负责盯控,责任到人,不留死角,并强化各工序的交接和检验,上道工序检验不合格坚决不允许进行下一道工序施工,控制好各分项工程;中层管理人员每天现场检查,对管理漏洞和质量隐患及时纠正处理, 控制好各分部工程;上层管理人员不定期对各作业面进行质量巡查,确保单位工程质量总体受控。通过层层把关、环环监督、事事落实,彻底杜绝不合格品的出现。
质量是一直贯穿于施工的主线,也是工程建设的目的。客运专线双块式无砟轨道设计高起点、高标准、高质量,施工能否达到设计要求,最终体现在轨道的施工精度上。要保证施工精度,必须从源头抓起、从各工序抓起,将“没有精度就没有质量、没有质量就没有进度”的施工理念贯彻到每个员工,各级领导要高度重视,各作业层认真对待,科学组织,精心施工,不断总结经验、改进施工工艺、提高施工水平,最终建设出一流的精品工程。
本文来源:筑龙路桥
如有侵权,请联系删除。